Elevator Shells. The Beginning of Vertical Greatness.
Elevator Shell Engineering Drawings
-

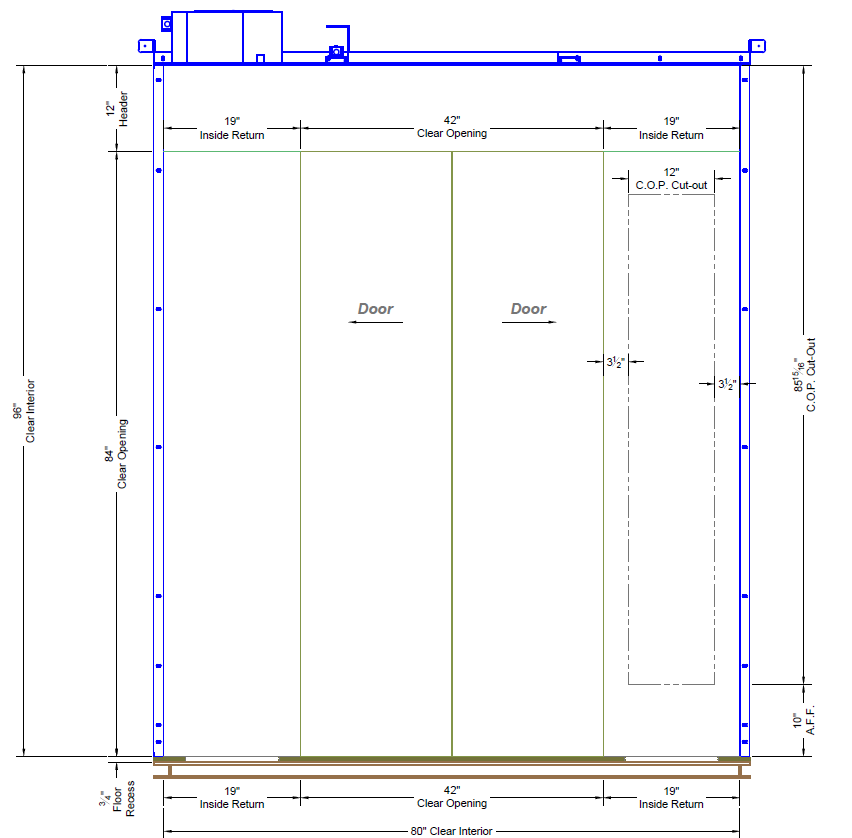
Shell Front Wall Elevation
-

Top View of Canopy
-

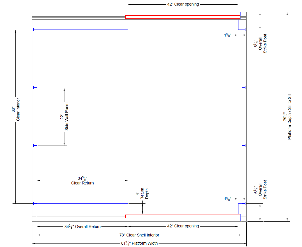
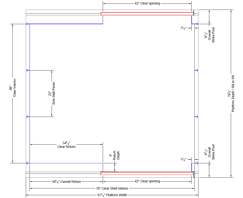
Front and Rear Opening Cab Plan View
Drafting and Engineering
Elevator Shell Drawings created with AutoCAD